Blijf op de hoogte van ons nieuwste aanbod
Schrijf u in
Sara Vandepoel
016/899 508
of 0491/505 000
sara@in2go.be
Te renoveren woning met garage op gunstige, rustige locatie!
IN OPTIE! Compromis in opmaak.
Te renoveren woning gelegen op een gunstige en rustige locatie met een vlotte verbinding naar Brussel, Leuven en de belangrijkste invalswegen. De omgeving combineert een residentieel karakter met nabijheid van winkels, scholen en openbaar vervoer, wat deze ligging bijzonder aantrekkelijk maakt voor gezinnen of investeerders.
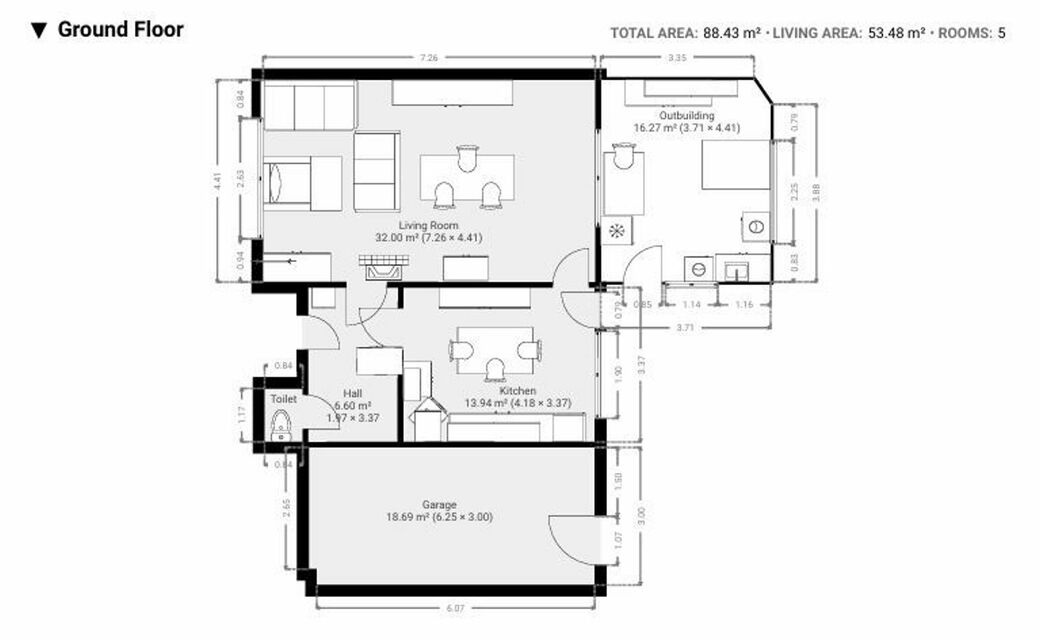
De woning bestaat uit een inkomhal met apart toilet en geeft toegang tot een ruime leefruimte met vooraan een gezellige zithoek en achteraan de eetkamer. Aansluitend bevindt zich een ingerichte, aparte keuken die uitgeeft op het aangename terras en de hoger gelegen tuin. De aangebouwde veranda biedt extra praktische ruimte.
Op de eerste verdieping zijn er drie slaapkamers en een badkamer. De zolder is bereikbaar via een zoldertrap en kan dienen als extra bergruimte of eventueel verder ingericht worden. Daarnaast is er ook een kelder aanwezig.
De garage, gelegen naast de woning, loopt door tot aan het achterliggende terras, wat bijzonder praktisch is voor opslag of directe toegang tot de tuin.
Deze woning biedt een sterke basis en veel potentieel voor wie op zoek is naar een renovatieproject op een uitstekende ligging.
Renovatieplicht van toepassing.
Contacteer ons voor het plannen van een bezoek en/of verdere info via info@in2go.be of 016/899 508.
Te renoveren woning gelegen op een gunstige en rustige locatie met een vlotte verbinding naar Brussel, Leuven en de belangrijkste invalswegen. De omgeving combineert een residentieel karakter met nabijheid van winkels, scholen en openbaar vervoer, wat deze ligging bijzonder aantrekkelijk maakt voor gezinnen of investeerders.
De woning bestaat uit een inkomhal met apart toilet en geeft toegang tot een ruime leefruimte met vooraan een gezellige zithoek en achteraan de eetkamer. Aansluitend bevindt zich een ingerichte, aparte keuken die uitgeeft op het aangename terras en de hoger gelegen tuin. De aangebouwde veranda biedt extra praktische ruimte.
Op de eerste verdieping zijn er drie slaapkamers en een badkamer. De zolder is bereikbaar via een zoldertrap en kan dienen als extra bergruimte of eventueel verder ingericht worden. Daarnaast is er ook een kelder aanwezig.
De garage, gelegen naast de woning, loopt door tot aan het achterliggende terras, wat bijzonder praktisch is voor opslag of directe toegang tot de tuin.
Deze woning biedt een sterke basis en veel potentieel voor wie op zoek is naar een renovatieproject op een uitstekende ligging.
Renovatieplicht van toepassing.
Contacteer ons voor het plannen van een bezoek en/of verdere info via info@in2go.be of 016/899 508.
Kenmerken
omgeving school
ja
omgeving openbaar vervoer
ja
bewoonbare opp.
153,00 m²
constructie
Halfopen
perceel opp.
369,00 m²
tuin
ja
garages / parking
1
binnenparking
1
Financieel
prijs
€ 349.000
beschikbaarheid
Vanaf akte
K.I.
€ 931
Indeling
Zolder
39 m²
Kelder
20 m²
slaapkamers
3
Slaapkamer 1
13 m²
Slaapkamer 2
16 m²
Slaapkamer 3
16 m²
badkamers
1
Badkamer
6 m²
toiletten
2
terras
ja
Hal
7 m²
Woonkamer
32 m²
Keuken
14 m²
Energie
EPC
701 kWh/m²
EPC unieke code
20260126-0003783905-RES-1
EPC klasse
F
elektriciteitskeuring
nee
verwarming
Stookolie
olietank
ja, 16 november 2022
Stedenbouw & ruimtelijke ordening
bestemming
Woongebied
bouwvergunning
ja
voorkooprecht
ja
vonnissen
nee
bodemattest
ja
datum bodemattest
15 januari 2026
MAP

































