Blijf op de hoogte van ons nieuwste aanbod
Schrijf u in
Sara Vandepoel
016/899 508
of 0491/505 000
sara@in2go.be
Instapklare en veelzijdige handelsruimte op toplocatie!
Deze recente en instapklare handelsruimte bevindt zich op een uiterst zichtbare en vlot bereikbare locatie, op slechts een steenworp van het bruisende centrum van Leuven. Dankzij de nabijheid van de opritten van zowel de E40 als de E314 is deze eigendom bovendien uitstekend verbonden met de omliggende steden en regio's. Het betreft een veelzijdig pand dat zich perfect leent voor vrije beroepen, co-working, kantoren of creatieve ondernemers die op zoek zijn naar een professionele uitvalsbasis op een strategische locatie in Heverlee, gelegen aan het mooie Arenbergplein met publieke parkeergelegenheid.
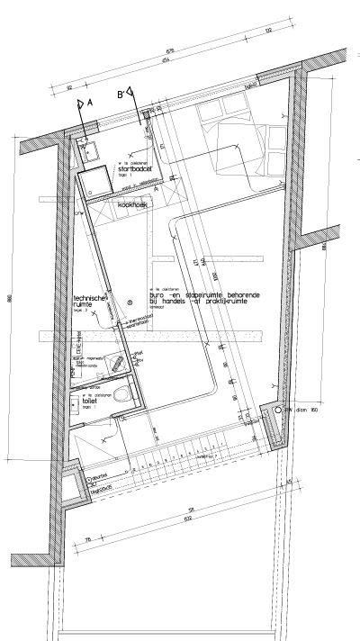
De gelijkvloerse verdieping (64m²) is volledig ingericht als kantoorruimte en beschikt momenteel over vijf afzonderlijke bureaus. Achteraan is er een rechtstreekse toegang tot een aangenaam terras, dat een ideale plek vormt voor een ontspannende pauze of een informeel overlegmoment.
Op de onderliggende verdieping (50m²) bevinden zich twee extra werkruimtes, gespreid over 2 verschillende niveaus. Achteraan biedt deze verdieping toegang tot een charmante binnenkoer, waar ook een handige buitenberging (4m²) is voorzien. Verder vinden we op dit niveau een afgesloten kitchenette, een apart toilet, een ruime berging en een lichtrijke gang die, via een centrale hal met lift, leidt naar een sfeervolle buitenpatio.
Er bestaat de mogelijkheid om bijkomende ruimtes te huren.
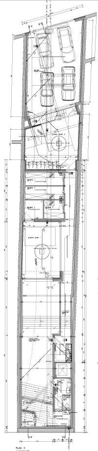
Zo kan er voor 200 euro per maand een afgesloten garage (52m²) worden bijgehuurd, bereikbaar via de Groenstraat. Deze garage biedt plaats aan vier wagens en kan daarnaast gebruikt worden voor het stallen van fietsen of als extra opslagruimte.
Voor 300 euro per maand is er ook een bijkomende kantoorunit (52m²) beschikbaar, die perfect dienst kan doen als uitbreiding van de bestaande werkruimte. Deze ruimte is gelegen boven de garage, met een aparte inkomhal en een gastentoilet. Deze ruimte beschikt over een grote open werkruimte, die momenteel werd opgedeeld in twee afzonderlijke bureaus, en is verder uitgerust met een volledig ingerichte keuken met toog, voorzien van een oven, koelkast, kookplaat, dampkap en vaatwasser. Daarnaast is er een eigen sanitaire ruimte met douche en lavabomeubel. Dankzij de open indeling en de aangename lichtinval leent deze ruimte zich ook uitstekend voor alternatieve invullingen, zoals een lunchruimte voor personeel, een polyvalente vergaderruimte of zelfs een creatief atelier.
Het pand beschikt over een gunstig EPC-label A, wat wijst op een hoge energie-efficiëntie en een laag verbruik, wat zowel ecologisch als economisch een belangrijk voordeel biedt.
Deze eigendom vormt een uitzonderlijke kans voor wie op zoek is naar een professionele ruimte met uitstraling, flexibiliteit en een uitstekende bereikbaarheid. Dankzij de doordachte indeling, de aanwezigheid van meerdere buitenruimtes en mogelijkheid tot het bij huren van een ruime parkeergelegenheid en extra kantoorruimte, is dit pand klaar om een waaier aan professionele activiteiten te huisvesten in een dynamische en goed ontsloten buurt van Heverlee.
Voorschot gemeenschappelijke lasten: 100 €/maand
Kost privatief verbruik nutsvoorzieningen (elektriciteit, gas en water): individueel en rechtstreeks voor de huurder
Beschikbaar: 01/01/2026
Handelshuurcontract (9 jaar)
Contacteer ons voor meer info en/of het plannen van een bezoek ter plaatse via info@in2go.be of 016/899 508.
Kenmerken
omgeving openbaar vervoer
ja
omgeving winkels
ja
omgeving autosnelweg
ja
omgeving centrum
ja
lift
ja
aansluiting gas
ja
aansluiting water
ja
bewoonbare opp.
170,00 m²
constructie
Gesloten
bouwjaar
2009
garages / parking
1
Financieel
prijs
€ 2.100 per maand
beschikbaarheid
01 januari 2026
kosten
€ 100 p/m
Indeling
Hal
ja
Keuken
ja
Berging
4 m²
terras
nee
Energie
EPC unieke code
20251002-0003698333-KNR-1
EPC klasse
A
elektriciteit
ja
telefoonbekabeling
ja

































